Квартира по реновации в Медведково |

Квартира по реновации в Медведково

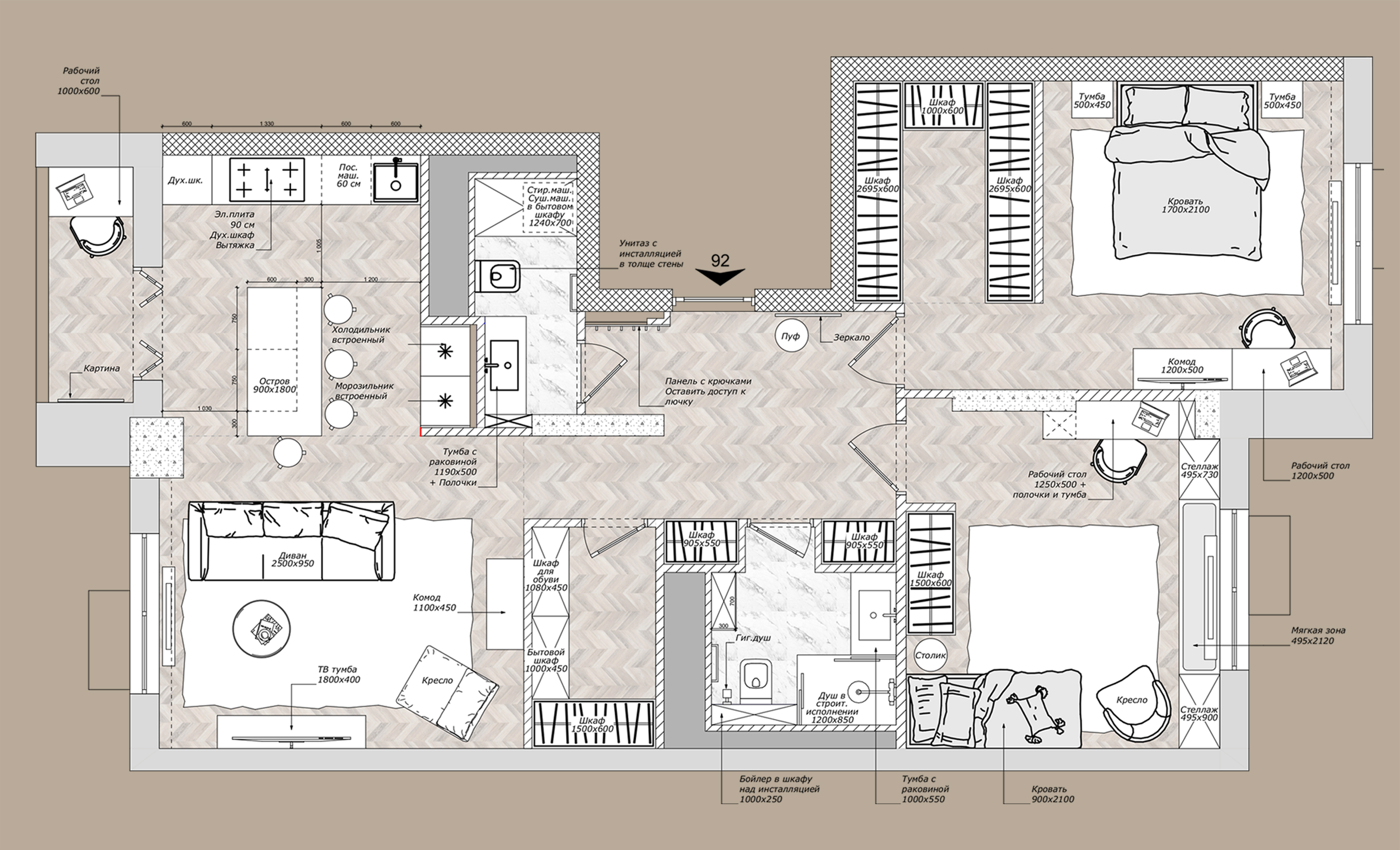
  • Услуги: дизайн-проект с выборочной технической документацией, визуализацией кухни-гостиной, подбор отд. материалов и просчет встроенной мебели.

 

Молодая семья в ожидании получения трёхкомнатной квартиры по программе реновации обратилась к нам с задачей оптимизировать пространство и разработать дизайн-проект квартиры с минимальным бюджетом. За счёт необходимых перепланировок удалось организовать большую кухню-гостиную и удобные комнаты. На визуализации будущие владельцы смогли наглядно представить свой интерьер. Проект был готов ещё до сдачи жилья. Это дало возможность заказчикам заблаговременно рассчитать и купить стройматериалы, и сразу начать ремонт.