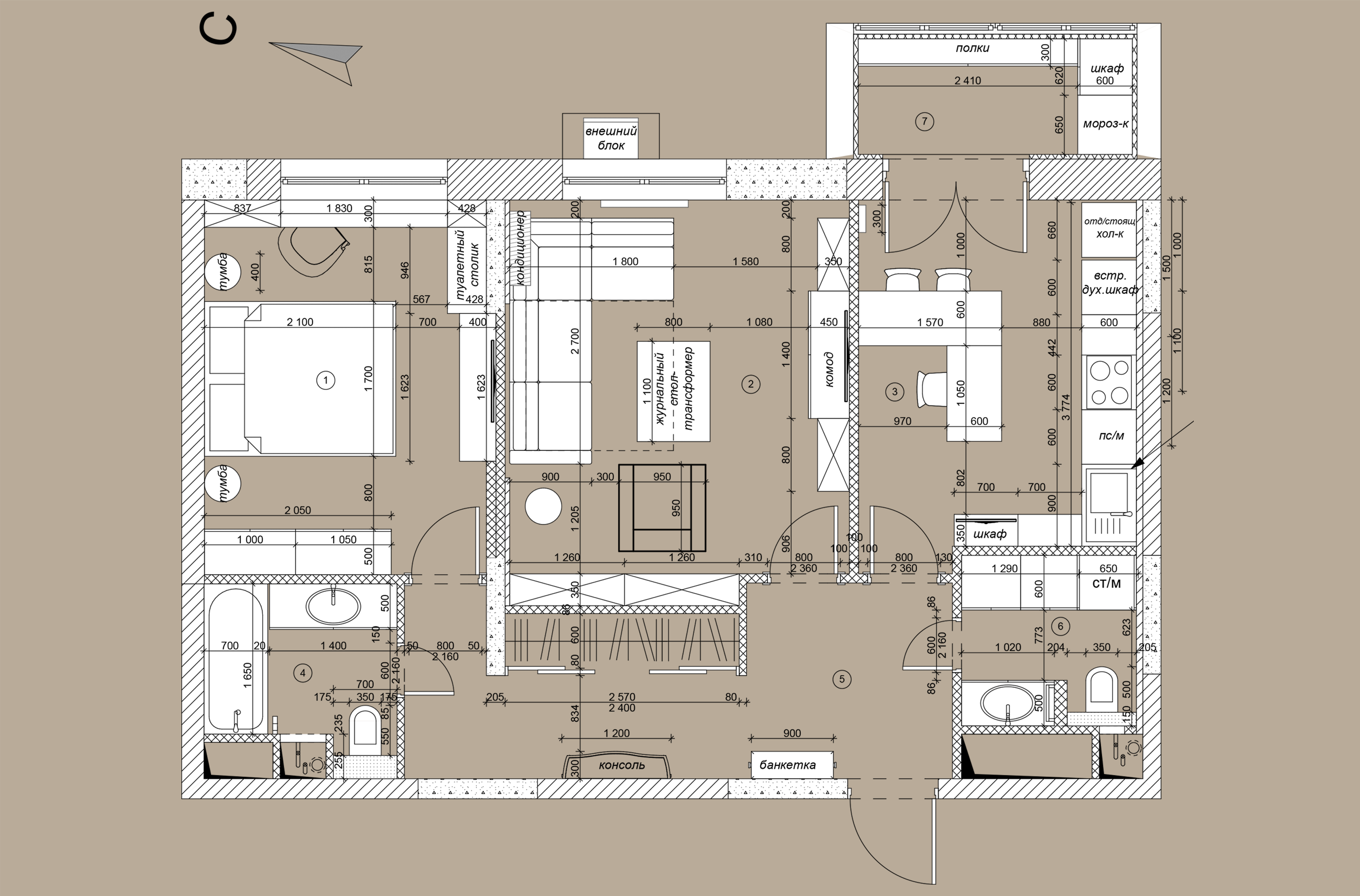
Квартира в ЖК комфорт-класса «Счастье на Сходненской», СЗАО г. Москвы. Наши заказчики – взрослая супружеская пара, никогда бы не подумали, что захотят жить в этой квартире с узким коридором, в которой множество дверей создавали ощущение «общежития». Они ставили перед нами задачу отремонтировать квартиру с минимальными затратами под сдачу в аренду. Предоставляя им несколько вариантов планировочных решений, мы тоже не ожидали реакции «А что, так можно? Давайте сделаем это подороже и для себя». Основные двери (в гостиную, кухню-столовую и спальню) стали акцентными, а второстепенные (в санузел и прачечную) – скрытыми. Добавив зеркал в отделку стен, и за счет этого визуально расширив пространство, мы превратили прихожую – коридор в парадный холл, как того хотел хозяин квартиры. В этом нам помогла грамотная раскладка напольного покрытия, необычная подсветка и разные сценарии освещения. Особое внимание уделялось созданию уникальных элементов декора и мебели, разработанных специально для этого проекта. Индивидуальные чертежи послужили основой для изготовления корпусной и встроенной мебели, а также необычного узора молдингов на потолке гостиной. Тщательная работа над выбором панно и точной цветовой коррекцией позволила создать гармоничную композицию, задающую тон всему пространству буквально с порога. Каждый элемент интерьера подчеркивает индивидуальный стиль и отражает вкусы владельцев.

