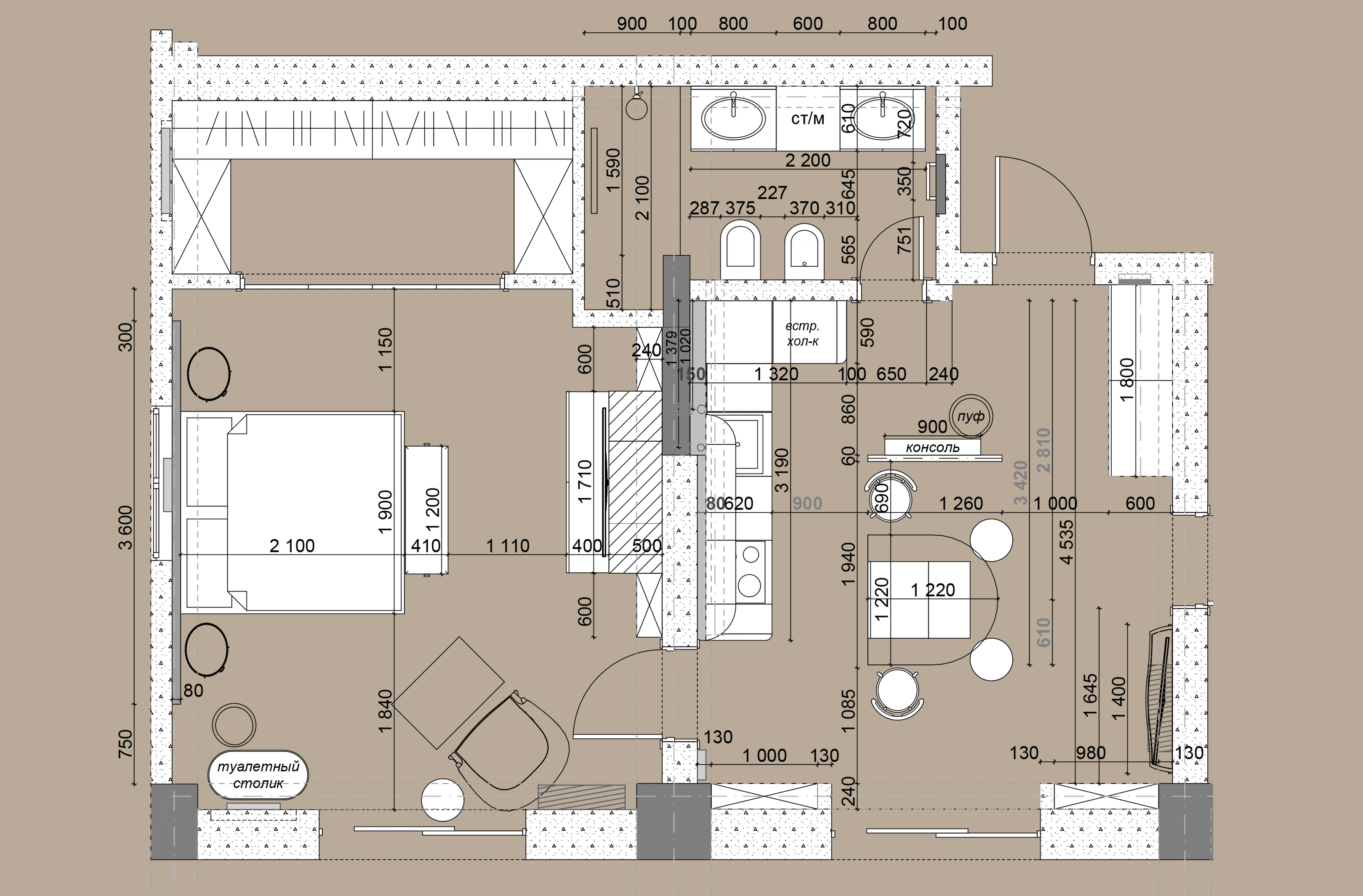
Над проектом работали полностью удалённо. Посетили объект в самом конце, когда уже собирали встроенную корпусную мебель. Семейная пара, их взрослая дочь и внучка собирались поехать отдохнуть в Геленджик в свою квартиру! Квартира куплена, лето уже через 4,5 месяца, но ремонт может испортить все планы! Задача стояла «простая» - превратить 80 м² уставшего интерьера в Maison de vacances – дом только для отдыха со средиземноморским флером. Ощутить атмосферу отпуска прямо с порога хозяевам помогли наши планировочные решения. Чтобы открыть прекрасный вид на террасу и сад, мы объединили прихожую зону с кухней-столовой, визуально разделив их легкой перегородкой из латуни. Светлые цвета интерьера с природными акцентами, хрустальная люстра, блики света, проникающие с веранды и отражающиеся в хрустале и зеркалах – помогли добиться ощущения легкости и воздушности пространства. Остров на кухне - как продолжение морской темы; вместо обычной ванны – большая душевая кабина и удобная тумба с двумя раковинами; выход на террасу из спальни хозяев – все это позволило избежать ощущения повседневности, о чем так мечтали наши Заказчики. Индивидуальность, высочайший уровень качества и исключительность - ключевые принципы такого премиального проекта. Мы создали неповторимые интерьерные решения, начиная от уникальной мебели с детализированными архитектурными элементами и заканчивая изысканными декоративными конструкциями. Каждое изделие изготавливалось исключительно на заказ согласно нашим проектным чертежам, воплощаясь в жизнь с применением натуральных материалов высокого класса: благородного камня, дорогого шпона и изящной латуни. Именно такое тщательное внимание к деталям обеспечило Заказчикам подлинную роскошь и абсолютную уникальность жилого пространства.

